|
Ihr
neues Zuhause in Kersbach
Modern und Exklusiv:
Attraktives Mehrfamilienwohnhaus
Vier moderne lichtdurchflutete 3-Zimmer-Komfortwohnungen davon zwei im Erdgeschoss mit Gartenanteil und zwei im 1. Obergeschoss mit sonnigem Balkon.
Hochwertig gebaut und ausgestattet.
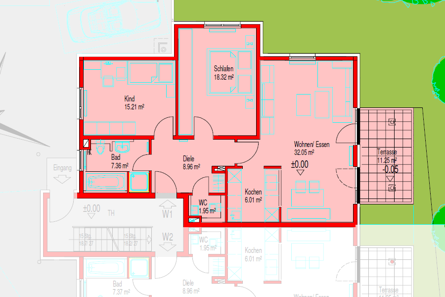
W1 / Erdgeschoss links
3-Zimmer-Wohnung ca. 87 qm WohnflÄche zuzÜglich
11,00 qm Terrasse und 170,00 qm Gartenanteil
| Wohnen/Essen |
|
31,00 qm |
| Kochen |
|
6,00 qm |
| Schlafen |
|
18,00 qm |
| Kind |
|
15,00 qm |
| Bad |
|
7,00 qm |
| Diele/ Gard. |
|
8,50 qm |
| WC |
|
2,00 qm |
| Terrasse |
|
11,00 qm |
| Gartenanteil |
|
170,00 qm |
| |
|
|
294.000,00 EUR |
|  |
W2 / Erdgeschoss rechts
3-Zimmer-Wohnung ca. 87 qm WohnflÄche zuzÜglich
11,00 qm Terrasse und 194,00 qm Gartenanteil
| Wohnen/Essen |
|
31,00 qm |
| Kochen |
|
6,00 qm |
| Schlafen |
|
18,00 qm |
| Kind |
|
15,00 qm |
| Bad |
|
7,00 qm |
| Diele/ Gard. |
|
8,50 qm |
| WC |
|
2,00 qm |
| Terrasse |
|
11,00 qm |
| Gartenanteil |
|
194,00 qm |
| |
|
|
289.000,00 EUR |
|
 |
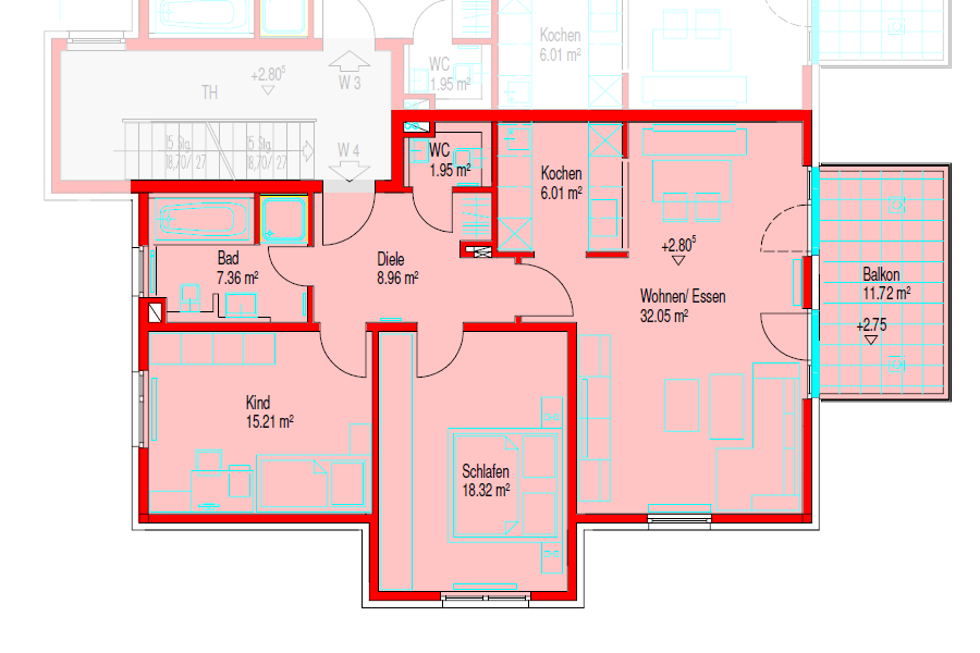
W3 / 1. Obergeschoss links
3-Zimmer-Wohnung ca. 87 qm WohnflÄche zuzÜglich
11,50 qm Balkon
| Wohnen/Essen |
|
31,00 qm |
| Kochen |
|
6,00 qm |
| Schlafen |
|
18,00 qm |
| Kind |
|
15,00 qm |
| Bad |
|
7,00 qm |
| Diele/ Gard. |
|
8,50 qm |
| WC |
|
2,00 qm |
| Balkon |
|
11,50 qm |
| |
|
|
289.800,00 EUR |
|
 |
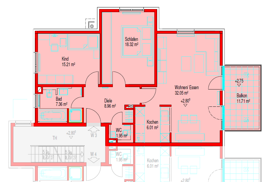
W4 / 1. Obergeschoss rechts
3-Zimmer-Wohnung ca. 87 qm WohnflÄche zuzÜglich
11,50 qm Balkon
| Wohnen/Essen |
|
31,00 qm |
| Kochen |
|
6,00 qm |
| Schlafen |
|
18,00 qm |
| Kind |
|
15,00 qm |
| Bad |
|
7,00 qm |
| Diele/ Gard. |
|
8,50 qm |
| WC |
|
2,00 qm |
| Balkon |
|
11,50 qm |
| |
|
|
286.000,00 EUR |
|
 |
Zurück
|