|
Ihr
neues Zuhause in Kersbach
Modern und Exklusiv:
Attraktives Mehrfamilienwohnhaus
Zwei moderne lichtdurchflutete 2-Zimmer-Komfortwohnungen im Dachgeschoss mit Loggia..
Hochwertig gebaut und ausgestattet:
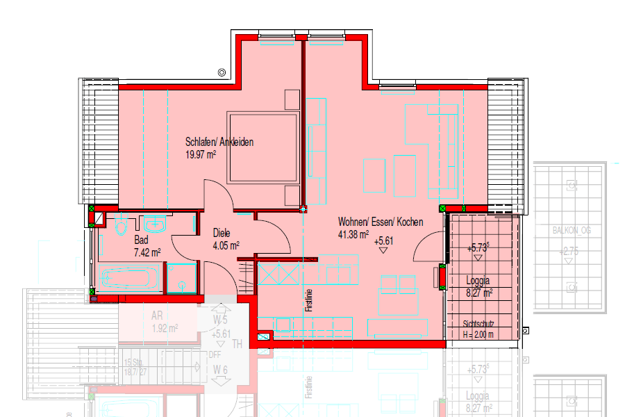
W5 / 2. Obergeschoss-Dachgeschoss
2-Zimmer-Wohnung ca. 72,50 qm WohnflÄche zuzÜglich 8,00 qm Loggia
| Wohnen/Essen/Kochen |
|
40,00 qm |
| Schlafen |
|
19,00 qm |
| Bad |
|
7,00 qm |
| Diele/ Gard. |
|
4,00 qm |
| AR |
|
2,00 qm |
| Loggia |
|
8,00 qm |
| |
|
|
248.500,00 EUR |
|
 |
W6 / 2. Obergeschoss - Dachgeschoss
2-zimmer-Wohnung ca. 70,50 qm WohnflÄche zuzÜglich 8,00 qm Loggia
| Wohnen/Essen/Kochen |
|
40,00 qm |
| Schlafen |
|
19,00 qm |
| Bad |
|
7,00 qm |
| Diele/ Gard. |
|
4,00 qm |
| Loggia |
|
8,00 qm |
| |
|
|
238,500,00 EUR |
|
 |
Zurück
|